Company Logo
Internet Explorer

Sorry! Your browser is not supported.

To view this site you can download a newer version of Internet Explorer.

  • 3
  • 1
  • 2
123M2 - 181M2

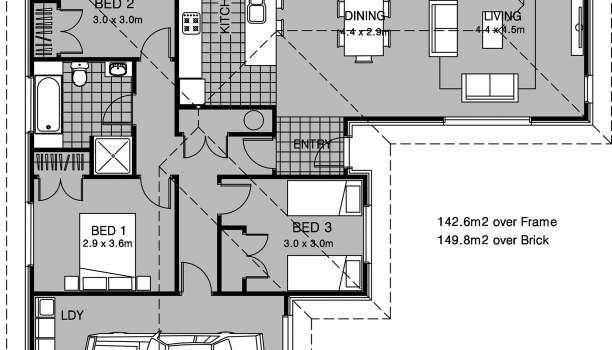
149M2 Plan

  • Features
  • - Floor Area 149m2
  • 3 bedrooms
  • Double Garage
  • 1 bathroom

Gallery kitchen with functional Dining/Living

Do you already have a site in mind? Contact us today to organise a free site visit and we can help plan the best home for you.

Book a free site visit

Enquire about this plan now