Company Logo
Internet Explorer

Sorry! Your browser is not supported.

To view this site you can download a newer version of Internet Explorer.

Home and Land Package

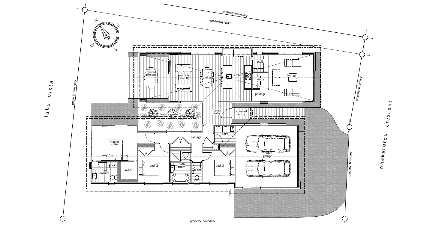
The Lakes - Lot 742

Features

Floor Area: 217 sq.m.
3 Bedrooms
Stunning Outlook
Open Plan Living
Galley Kitchen & Scullery
Separate Lounge
Study Nook
Covered Alfresco Roof
Plaster and Linea Cladding
Double Garage
Separate Laundry
Boat / Camper Parking


Floorplan


Home & Land package $897,000.00
Master Builders 10 year Guarantee
Greg Leopold Licensed Building Practitioner
Subdivision Compliance Certificate 

External Walls to be timber frames with Premier group country series brick and painted JH Linea

Windows & Doors as per plans with Double Glazing - excluding garage. Coloured Hardware standard on all our homes.
Bathroom windows Opalescent
Front Door Platinum Aluminium

Roof coloursteel corrugated longrun roofing

.55g colour steel fascia and ¼ round gutters on internal brackets, .80mm round colour cote down pipes.

Garage Door Coloursteel Flat Woodgrain – 2 remotes

Interior Lining/Finishing’s

Insulation Pink Batts 2.2 walls & 3.6 in ceilings
2400 m Stud Height -Raking sitting-kitchen-kitchen
100 x 50 internal framing
Groove finish Pre Hung doors
Door & window jambs finger jointed pine
Astron handles
Walls to be lined with 10mm Gib-board with Aqua line to bathrooms
Ceilings lined with 13mm Gib-board with Aqua line to bathrooms
Plastering to F4 grade
Cornice is 75mm Gib Cove Timber beading to cupboards
Skirting Pine 90mm x 10mm Architraves Pine 40mm x 10mm
Paint Finish - Four colours

Designer Kitchen with scullery & built in laundry

Rangehood venting & installation is included in all of our homes
Kitchen bench Silestone HK builders range
Tiled splashback
Innotech drawers softclose
Elliptic Sink mixer to Kitchen
ISE Model Waste Disposal unit
Bulk head included
Scullery HK white with 50mm Laminate bench

Appliances

1 x POR 668S Westinghouse multi 8 ovens S/S
PHN768U Westinghouse 60cm frameless hob
Tisira 52cm powerpack
WSF6602XR Westinghouse dishwasher

Electrical

Recessed Light fittings HPM LEDs
2 Television & 2 Telephone Outlets
Feature lighting to vanities & kitchen Exterior LED and Twin Fluorescents

Bathroom Fittings

La Torre studio range of Sink & Basin Mixers, Bath spout.
Nikles Fresh Slide Shower.
240 Series Robe Hook, towel rings & toilet roll holder.
Heirloom Genesis Heated Towel Ladders
Bolero vanities to Bathroom & Ensuite
Gala Lava BTW toilet suites
Tiled Shower to Ensuite with glass door wall & 2 glass shelves
1600mm Caroma Aura Freestanding bath
Onda basin to WC room
180L Coopers Solar Ready Hot Water Cylinder
3 x mirrors length of vanity to vanity light
Laundra Max Tub 2 to Laundry
Amara Shower to bathroom

Flooring

Carpet Court Silver selection planking
Garage Carpet Anthracite
Carpet Court Silver selection laid on 11mm as per plans

Heating

Heating Allowance $4500.00

Shelving

Solid Shelving to WIR and white ventilated shelving with 4 shelves in hot cupboards and mix of shelves in bedrooms

Landscaping, Clothesline & Letterbox

$30,000.00 package includes concrete work & Driveway

Security system excluded
Council permit costs included
Blinds & Curtains are not included

Note subject to final geotech report to confirm drainage for section